Panoramic Elevator
MDFUJI sightseeing ladder series beautiful capsules and humanized design perfect combination bring brand-new elevator for passengers sightseeing experience
Features
PRODUCT DESCRIPTION
MDFUJI sightseeing ladder series, beautiful capsules and humanized design perfect combination, bring brand-new elevator for passengers sightseeing experience. Mainly suitable for senior hotel, building, etc.
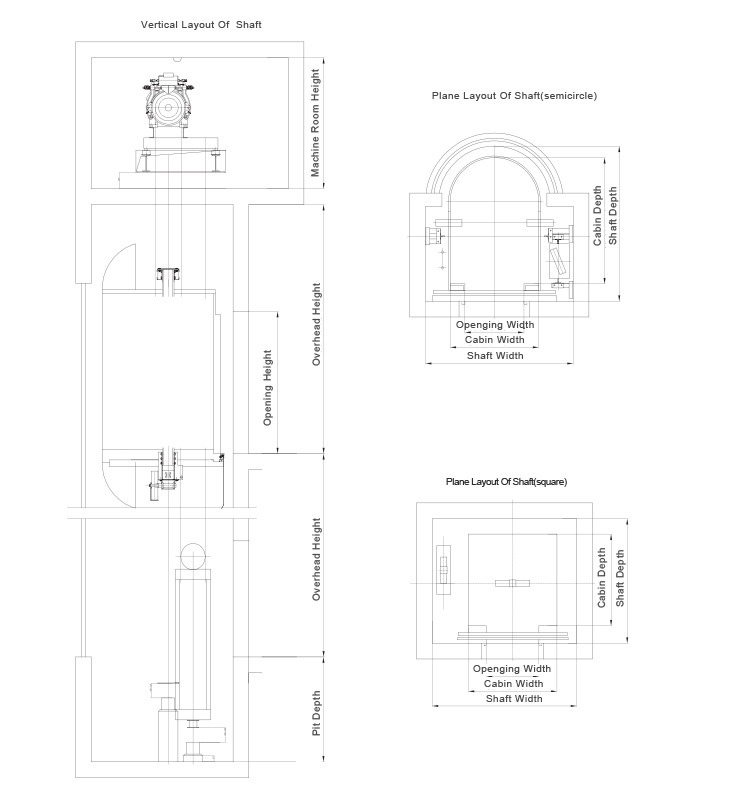
PRODUCT SPECIFICATION

| Model |
Load Kg |
Speed m/s |
Pers |
Car Size (mm) CW×CD×HK |
Opening Size(mm) PL×LH |
Shaft Size(mm) SW×SD |
Overhead Hight H2 mm |
Pit Depth H1 mm |
Travelling Height H mm |
| MDFUJI-G-630/1.0 | 630 | 1 | 8 | 1200×1550×2400(round) | 800×2100 | 2050×2000 | 4400 | 1600 | 50 |
| MDFUJI-G-630/1.5 | 630 | 1.5 | 8 | 1200×1550×2400(round) | 800×2100 | 2050×2000 | 4500 | 1700 | 75 |
| MDFUJI-G-630/1.75 | 630 | 1.75 | 8 | 1200×1550×2400(round) | 800×2100 | 2050×2000 | 4500 | 1700 | 85 |
| MDFUJI-G-630/1.0 | 630 | 1 | 8 | 1350×1200×2400(square) | 800×2100 | 2200×1700 | 4400 | 1600 | 50 |
| MDFUJI-G-630/1.5 | 630 | 1.5 | 8 | 1350×1200×2400(square) | 800×2100 | 2200×1700 | 4500 | 1700 | 75 |
| MDFUJI-G-630/1.75 | 630 | 1.75 | 8 | 1350×1200×2400(square) | 800×2100 | 2200×1700 | 4500 | 1700 | 85 |
| MDFUJI-G-800/1.0 | 800 | 1 | 10 | 1200×1750×2400(round) | 800×2100 | 2050×2200 | 4400 | 1600 | 50 |
| MDFUJI-G-800/1.5 | 800 | 1.5 | 10 | 1200×1750×2400(round) | 800×2100 | 2050×2200 | 4500 | 1700 | 75 |
| MDFUJI-G-800/1.75 | 800 | 1.75 | 10 | 1200×1750×2400(round) | 800×2100 | 2050×2200 | 4500 | 1700 | 85 |
| MDFUJI-G-800/1.0 | 800 | 1 | 10 | 1350×1400×2400(square) | 800×2100 | 2200×1900 | 4400 | 1600 | 50 |
| MDFUJI-G-800/1.5 | 800 | 1.5 | 10 | 1350×1400×2400(square) | 800×2100 | 2200×1900 | 4500 | 1700 | 75 |
| MDFUJI-G-800/1.75 | 800 | 1.75 | 10 | 1350×1400×2400(square) | 800×2100 | 2200×1900 | 4500 | 1700 | 85 |
| MDFUJI-G-1000/1.0 | 1000 | 1 | 13 | 1350×1925×2400(round) | 900×2100 | 2250×2365 | 4400 | 1600 | 50 |
| MDFUJI-G-1000/1.5 | 1000 | 1.5 | 13 | 1350×1925×2400(round) | 900×2100 | 2250×2365 | 4500 | 1700 | 75 |
| MDFUJI-G-1000/1.75 | 1000 | 1.75 | 13 | 1350×1925×2400(round) | 900×2100 | 2250×2365 | 4500 | 1700 | 85 |
| MDFUJI-G-1000/1.0 | 1000 | 1 | 13 | 1600×1400×2400(square) | 900×2100 | 2450×1900 | 4400 | 1600 | 50 |
| MDFUJI-G-1000/1.5 | 1000 | 1.5 | 13 | 1600×1400×2400(square) | 900×2100 | 2450×1900 | 4500 | 1700 | 75 |
| MDFUJI-G-1000/1.75 | 1000 | 1.75 | 13 | 1600×1400×2400(square) | 900×2100 | 2450×1900 | 4500 | 1700 | 85 |
| MDFUJI-G-1350/1.0 | 1250 | 1 | 16 | 1550×2025×2400(round) | 900×2100 | 2450×2465 | 4400 | 1600 | 50 |
| MDFUJI-G-1350/1.5 | 1250 | 1.5 | 16 | 1550×2025×2400(round) | 900×2100 | 2450×2465 | 4500 | 1700 | 75 |
| MDFUJI-G-1350/1.75 | 1250 | 1.75 | 16 | 1550×2025×2400(round) | 900×2100 | 2450×2465 | 4500 | 1700 | 85 |
| MDFUJI-G-1350/1.0 | 1250 | 1 | 16 | 1700×1700×2400(square) | 900×2100 | 2550×2200 | 4400 | 1600 | 50 |
| MDFUJI-G-1350/1.5 | 1250 | 1.5 | 16 | 1700×1700×2400(square) | 900×2100 | 2550×2200 | 4500 | 1700 | 75 |
| MDFUJI-G-1350/1.75 | 1250 | 1.75 | 16 | 1700×1700×2400(square) | 900×2100 | 2550×2200 | 4500 | 1700 | 85 |




